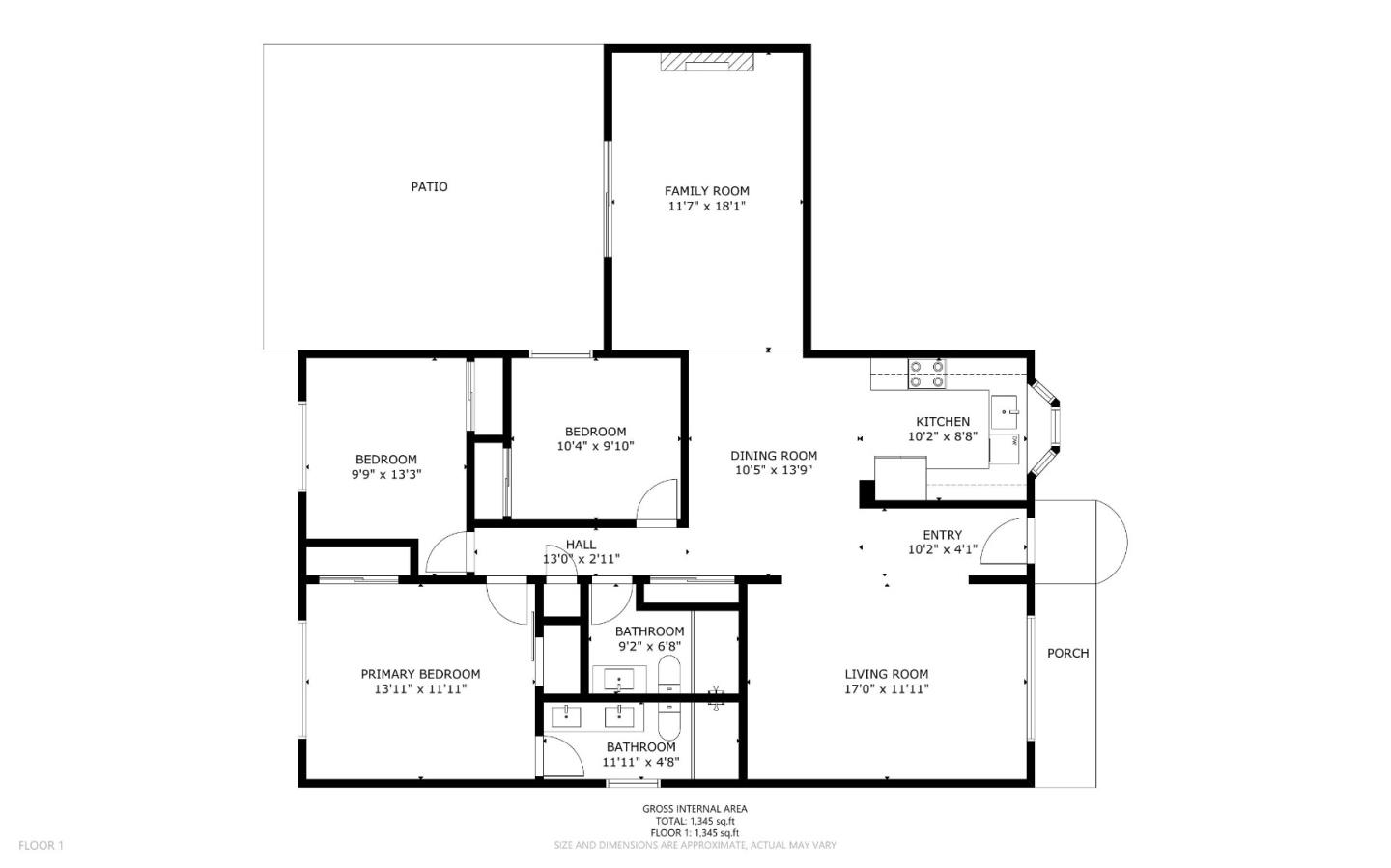
Located in the desirable Dove Hill neighborhood, this home was completely remodeled in 2025 with a sleek, turn-key aesthetic. Wide-plank hardwood flooring leads into a bright living area, while the custom kitchen features quartz countertops with a matching backsplash, Euro-design cabinetry, stainless steel appliances, and a bright, modern layout. New Milgard windows throughout elevate the homes natural light and energy efficiency. A separate living room offers an electric fireplace that adds warmth to the modern interior. Sliding glass doors open to a private backyard with drought-tolerant landscaping, ideal for entertaining. The primary bedroom is a serene retreat with ample closet space and an ensuite featuring porcelain-tiled floors and walls, integrated lighted mirrors. Two additional bedrooms provide flexibility for guests or a home office. With a new roof, luxury finishes throughout, and walking distance to Silver Creek High, this residence offers the perfect blend of convenience, comfort, and contemporary living near major freeways, shopping, and trails.
MLS #
ML82029079
MLS Source
MLSListings, Inc.
Days on Site
1
Bedrooms
Primary Suite/Retreat
Bathrooms
Double Sinks, Tile, Updated Bath(s)
Kitchen
Exhaust Fan
Appliances
Dishwasher, Exhaust Fan, Microwave, Oven - Electric, Refrigerator, Washer/Dryer
Dining Room
Dining Area
Family Room
Separate Family Room
Fireplace
Family Room, Insert
Flooring
Hardwood, Tile
Laundry
In Garage
Cooling
Central Forced Air
Heating
Central Forced Air
Roof
Composition, Shingle
Foundation
Concrete Perimeter and Slab
Garage/Parking
Attached Garage, Room for Oversized Vehicle, Garage: 2 Car(s)
Elementary District
Evergreen Elementary
High School District
East Side Union High
Sewer
Public Sewer
Water
Public
Zoning
R1-8C
3735 Ruther Place Way is a Single Family Residence in San Jose, CA 95121. This 1,355 square foot property sits on a 5,555 Sq Ft Lot and features 3 bedrooms & 2 full bathrooms. It is currently priced at $1,399,000 and was built in 1973. This address can also be written as 3735 Ruther Place Way, San Jose, CA 95121.
©2025 MLSListings Inc. All rights reserved. All data, including all measurements and calculations of area, is obtained from various sources and has not been, and will not be, verified by broker or MLS. All information should be independently reviewed and verified for accuracy. Properties may or may not be listed by the office/agent presenting the information. Information provided is for personal, non-commercial use by the viewer and may not be redistributed without explicit authorization from MLSListings Inc.
Presently MLSListings.com displays Active, Contingent, Pending, and Recently Sold listings. Recently Sold listings are properties which were sold within the last three years. After that period listings are no longer displayed in MLSListings.com. Pending listings are properties under contract and no longer available for sale. Contingent listings are properties where there is an accepted offer, and seller may be seeking back-up offers. Active listings are available for sale.
This listing information is up-to-date as of December 09, 2025. For the most current information, please contact Emily Gore, (650) 690-5656