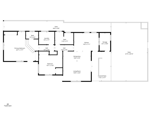
UPDATED: Welcome to Fellows Ave, an Oversized Gated Property with Development & Income Potential. Located behind a secure gate on a secluded private cul-de-sac, 11602 Fellows Ave presents a rare investment opportunity in Pacoima on an expansive 16,659 sq ft lot—one of the largest in the area. The property features a permitted 3-bedroom, 2-bath front house, plus two additional structures historically used as income-producing units: a studio and a 2-bedroom converted garage. Only the front house is permitted for residential use. Back unit tenants have vacated the property. Property will be delivered vacant at close of escrow. Showings available and scheduled by appointment only. The structures are functional and have been occupied as rentals, though future owners should anticipate updates and improvements. The layout and scale of the lot offer significant flexibility for redevelopment, ADU/JADU configuration, or long-term value-add investment; subject to buyer’s verification of legal uses and development feasibility under LAR1 zoning. The property is currently on a private septic system, which requires maintenance and servicing by the owner. Buyers should confirm system condition and future requirements during their due diligence period. A long driveway leads to all
MLS #
CRNP25228299
MLS Source
California Regional MLS
Days on Site
73
Bedrooms
Ground Floor Bedroom
Kitchen
None
Appliances
Other
Fireplace
None
Laundry
Other
Cooling
Window/Wall Unit
Foundation
Slab
Pool
None
Garage/Parking
Garage: 0 Car(s)
Elementary District
Los Angeles Unified
High School District
Los Angeles Unified
Sewer
Septic Tank
HOA Fee
$0
11602 Fellows Ave is a Single Family Residence in Pacoima, CA 91331. This 1,415 square foot property sits on a 0.382 Acres Lot and features 3 bedrooms & 2 full bathrooms. It is currently priced at $899,000 and was built in 1950. This address can also be written as 11602 Fellows Ave, Pacoima, CA 91331.
©2025 California Regional MLS. All rights reserved. All data, including all measurements and calculations of area, is obtained from various sources and has not been, and will not be, verified by broker or MLS. All information should be independently reviewed and verified for accuracy. Properties may or may not be listed by the office/agent presenting the information. Information provided is for personal, non-commercial use by the viewer and may not be redistributed without explicit authorization from California Regional MLS.
Presently MLSListings.com displays Active, Contingent, Pending, and Recently Sold listings. Recently Sold listings are properties which were sold within the last three years. After that period listings are no longer displayed in MLSListings.com. Pending listings are properties under contract and no longer available for sale. Contingent listings are properties where there is an accepted offer, and seller may be seeking back-up offers. Active listings are available for sale.
This listing information is up-to-date as of December 11, 2025. For the most current information, please contact Joshua Coburn