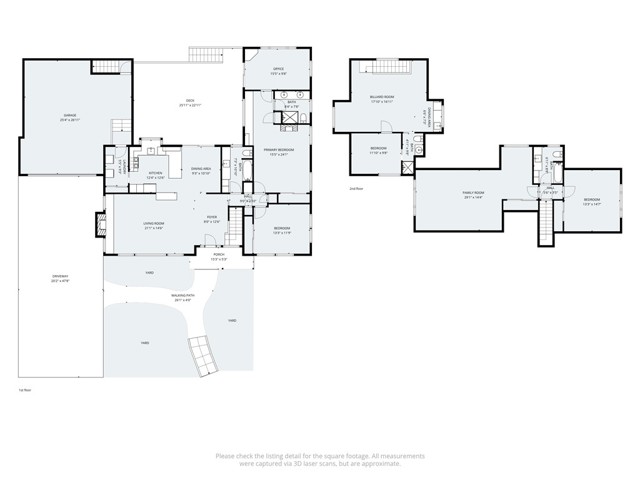
Level-entry home in coveted Hamiltair Estates—yes, actual level entry in Lake Arrowhead—with true main-level living and easy access to the lake and dock. The primary suite, kitchen, living and dining areas are all on the main floor, so you can skip the daily stair workout if you choose. The versatile layout works for multi-gen living, hosting lots of guests, or running your world from home. Inside you’ll find 4 bedrooms plus an office (possible 5th bedroom), 4 baths (2 full, 2 three-quarter), a recently remodeled kitchen with newer Bosch appliances, a high-efficiency fireplace insert, abundant storage, and enhanced high-speed WiFi with a mesh network so everyone can stream, Zoom, and scroll in peace. A separate guest apartment above the garage with kitchenette is ideal for extended-stay guests, intergenerational living, a caretaker, or a private office/suite—just be warned, people may not want to leave. Outdoors, enjoy level, landscaped front and rear yards, a peaceful front courtyard for morning coffee, and a large deck for entertaining and outdoor dining. Forest Care has been recently completed, and there is a fire hydrant at the corner of the lot for added peace of mind. The home features a lifetime, fire-resistant Cedurlite concrete tile roof with matching lightweight conc
MLS #
CRIG25271951
MLS Source
California Regional MLS
Days on Site
4
Bedrooms
Ground Floor Bedroom, Primary Suite/Retreat
Kitchen
Other
Appliances
Garbage Disposal, Other, Oven - Gas, Oven Range - Gas, Refrigerator, Dryer, Washer
Dining Room
Breakfast Nook
Family Room
Other
Fireplace
Living Room
Flooring
Laminate
Cooling
None
Heating
Central Forced Air, Fireplace
Roof
Concrete
Foundation
Raised
Pool
None
Style
Custom
Garage/Parking
Attached Garage, Garage, Gate/Door Opener, Garage: 2 Car(s)
Elementary District
Rim of the World Unified
High School District
Rim of the World Unified
HOA Fee
$3850
HOA Fee Frequency
Annually
Listing Agent
Steven Keefe
COLDWELL BANKER SKY RIDGE REALTY
License #: 01085197
Phone: (909) 336-2131
Co-Listing Agent
Joseph Shaw
Shaw Real Estate Brokers
License #: 01957392
Phone: –
27685 High Knoll Rd. is a Single Family Residence in Lake Arrowhead, CA 92352. This 2,975 square foot property sits on a 8,888 Sq Ft Lot and features 4 bedrooms & 4 full bathrooms. It is currently priced at $2,197,000 and was built in 1962. This address can also be written as 27685 High Knoll Rd., Lake Arrowhead, CA 92352.
©2025 California Regional MLS. All rights reserved. All data, including all measurements and calculations of area, is obtained from various sources and has not been, and will not be, verified by broker or MLS. All information should be independently reviewed and verified for accuracy. Properties may or may not be listed by the office/agent presenting the information. Information provided is for personal, non-commercial use by the viewer and may not be redistributed without explicit authorization from California Regional MLS.
Presently MLSListings.com displays Active, Contingent, Pending, and Recently Sold listings. Recently Sold listings are properties which were sold within the last three years. After that period listings are no longer displayed in MLSListings.com. Pending listings are properties under contract and no longer available for sale. Contingent listings are properties where there is an accepted offer, and seller may be seeking back-up offers. Active listings are available for sale.
This listing information is up-to-date as of December 10, 2025. For the most current information, please contact Steven Keefe, (909) 336-2131