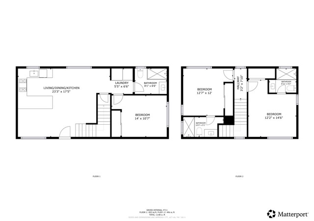
Completed in 2025, this brand-new 3-bedroom, 3-bath ADU offers modern living in a highly desirable Pasadena neighborhood. Designed with comfort and efficiency in mind, the home features an open-concept living space with hard-surface flooring throughout, creating a clean, contemporary feel. The stylish kitchen is equipped with stainless steel appliances and ample counter space, perfect for everyday cooking or entertaining. The main level includes one bedroom on the first floor and an adjacent full bathroom with a step-in shower and vanity, providing excellent flexibility for guests, multigenerational living, or a home office. Upstairs, both bedrooms are en-suite, each offering its own bathroom with large walk-in showers, providing comfort and privacy for all occupants. A new HVAC system and solar system contribute to year-round comfort and energy efficiency. Ideally located, this ADU enjoys easy access to nearby shops, restaurants, and entertainment, offering a convenient Pasadena lifestyle with the benefits of brand-new construction and thoughtful design.
MLS #
CRCV25273774
MLS Source
California Regional MLS
Days on Site
0
Rent Includes
None
Bedrooms
Ground Floor Bedroom
Appliances
Other
Fireplace
None
Laundry
Other
Cooling
Central Forced Air - Electric
Pool
None
Garage/Parking
Other, Garage: 0 Car(s)
Elementary District
Pasadena Unified
High School District
Pasadena Unified
HOA Fee
$0
3657 Mountain View Ave is a Single Family Residence for Rent in Pasadena, CA 91107. This 1,200 square foot property sits on a 1,000 Sq Ft Lot and features 3 bedrooms & 3 full bathrooms. It is currently priced at $3,500 and was built in 2025. This address can also be written as 3657 Mountain View Ave, Pasadena, CA 91107.
©2025 California Regional MLS. All rights reserved. All data, including all measurements and calculations of area, is obtained from various sources and has not been, and will not be, verified by broker or MLS. All information should be independently reviewed and verified for accuracy. Properties may or may not be listed by the office/agent presenting the information. Information provided is for personal, non-commercial use by the viewer and may not be redistributed without explicit authorization from California Regional MLS.
Presently MLSListings.com displays Active, Contingent, Pending, and Recently Sold listings. Recently Sold listings are properties which were sold within the last three years. After that period listings are no longer displayed in MLSListings.com. Pending listings are properties under contract and no longer available for sale. Contingent listings are properties where there is an accepted offer, and seller may be seeking back-up offers. Active listings are available for sale.
This listing information is up-to-date as of December 11, 2025. For the most current information, please contact Jonathan Chi